Böll Architekten - Logo

Menüsvg icon hamburger

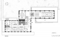
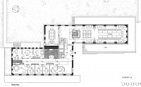
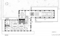
Zeche Rhein-Elbe
Umbau zum Gästehaus und Bürogebäude, 1989

Bauherr: IBA Emscherpark
Standort: Leithestr., Gelsenkirchen

Das Trafohaus und die Telefonzentrale der ehemaligen Zeche Rhein-Elbe wurden zu Hauptverwaltung und Gästehaus der IBA Emscherpark umgebaut. An ihrem eigenen Sitz folgte die IBA ihrer Auffassung, dass im Ruhrgebiet bereits ausreichend Gebäude vorhanden seien, um alle Bedürfnisse zu erfüllen. Nach dem Ende der IBA bezogen das “Europäische Haus der Stadtkultur” und die “Kultur Ruhr GmbH” die Häuser.

Zustand vor dem Umbau

Fotograf: Joachim Brohm VG Bild Kunst

Projekte