Böll Architekten - Logo

Menüsvg icon hamburger

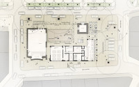
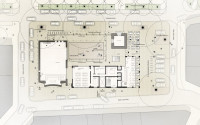
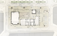
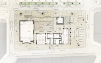
Lutherkirche Köln
Wettbewerb, 2019

Ausloberin: Evangelische Gemeinde Köln
Standort: Martin-Luther-Platz 4, 50677 Köln

Die evangelische Lutherkirche liegt in einer städtebaulich exponierten Lage auf dem Martin-Luther-Platz in der Kölner Südstadt. Nach der Kriegszerstörung wurde das Ensemble aus Kirche und Wohn- und Gemeindehaus unter Verwendung von Teilen des ursprünglichen Kirchturms wieder aufgebaut. Die Gemeinde beabsichtigt nun eine Neuentwicklung der an die Kirche angegliederten Ergänzungsbauten. Unser Entwurf schafft einen sich zur Stadt hin einladenden Bau, der das im Bestand bereits vorhandene Motiv des geschützten Hofes aufgreift.

Projekte