Böll Architekten - Logo

Menüsvg icon hamburger

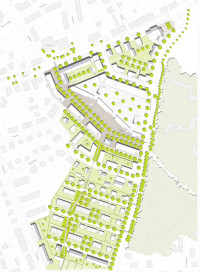
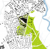
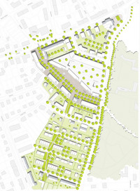
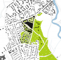
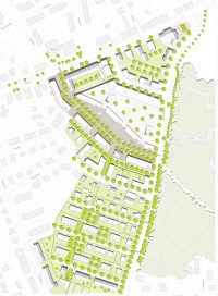
Krügel-Areal
Städtebaulicher Ideenwettbewerb, Stein, 2006

Arbeitsgemeinschaft mit Planergruppe Oberhausen
Wettbewerb 2. Preis

Der neue Stadtplatz ist der Treffpunkt der Stadt Stein und dient als Scharnier zwischen Wohnquartieren und dem Geschäftsviertel. Er bietet Raum für die Aussengastronomie und ist Ort für Feste und Veranstaltungen. Die Baumreihe im Süden bildet den grünen Rand des steinernen Platzes und ist gleichzeitig Blätterdach fürs Parken.
Die Umleitung der Geschäftszone an der Stelle des Rathauses Richtung Stadtpark kulminiert in der Aufweitung des Stadtplatz. Eine dreigeschossige Bebauung bildet den Rahmen des entstandenen Platzes.
Die fingerartigen Baumreihen entlang der Wohnstraßen bringen den Stadtpark in die Stadt.
Der Spazierweg ist die Verbindung zwischen Wohnen und Einkaufen. Im Zentrum des Südens wird er begleitet von grünen Aufweitungen, die kombiniert mit Retentionsflächen Spiel und Aufenthaltsflächen bieten. Das Parken ist auf kleinen überschaubaren Plätzen untergebracht und im gesamten Quartier verteilt. Baumüberstanden und von Hecken gefasst werden sie zu grünen Inseln.

Projekte