Böll Architekten - Logo

Menüsvg icon hamburger

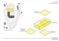
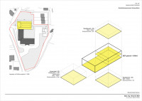
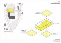
Musikbildungszentrum Südwestfalen
Machbarkeitsstudie, Bad Fredeburg, 2010

Auftraggeber: Akademie Bad Fredeburg, Stadt Schmallenberg
Standort: Johannes-Hummel-Weg 1, 57392 Schmallenberg-Bad Fredeburg

Im Rahmen der Regionale 2013 sollte die Akademie Bad Fredeburg zum “Musikbildungszentrum Südwestfalen” ausgebaut werden. Das bestehende Gebäude war in den 1920er Jahren als Mädchenschule errichtet und in den 60er Jahren erweitert worden. Die Machbarkeitsstudie zeigte auf, unter welchen Bedingungen sich die bestehende Einrichtung baulich weiterentwickeln läßt. Zu berücksichtigen waren mehrere zur Zeit bereits in dem Gebäudekomplex untergebrachte Nutzungen sowie die Anforderungen an einen zeitgemäßen Betrieb musikalischer Übungsräume sowie eines kleinen Konzertsaals. Die Studie diente als Grundlage eines im weiteren Verfahren durchgeführten Architekturwettbewerbs.

Projekte