Böll Architekten - Logo

Menüsvg icon hamburger

Ennepebogen Gevelsberg
Städtebauliche Entwicklungsplanung

Wettbewerb 2002

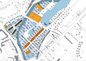
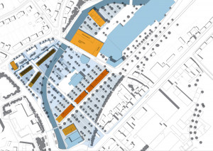
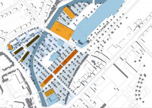
Der Ennepebogen ist eine innenstadtnahe Brache mit einem schlechten Image, geprägt durch die Erinnerung an das Kraftwerk, die vorhandene Umspannanlage und bauliche Reste der am Fluss entlang gebauten Industrie. Ziel unserer Arbeit ist es, aus dem desolaten Ist-Zustand des Ennepebogens ein attraktives Stück Stadt zu entwickeln, das eine sinnvolle Ergänzung der Gevelsberger Innenstadt darstellt. Aus der Analyse des Standortes ergeben sich dafür vier wichtige Nutzungsbausteine: Die Erweiterung des Dienstleistungssektors, die Schaffung hochwertiger Wohnbauflächen, ein Angebot an öffentlichem Grünraum sowie eine freizeitorientierte Nutzung der vorhandenen Freiräume und Hallen. Ergänzt wird das Konzept durch einen großen Parkplatz zur Stärkung des Einzelhandels in der Gevelsberger Innenstadt.

Der Büroriegel schafft eine klare geordnete Stadtstruktur im Ennepebogen mit einer relativ geringen Baudichte. Da eine dichte Bebauung des Ennepebogens aufgrund der zahlreichen Restriktionen nicht möglich bzw. nicht realistisch erscheint, besteht die Gefahr einer Zersiedlung mit beziehungslosen Solitären, die wiederum von nicht kontrollierbaren Grundstücksflächen umgeben sind. Die Konzentration auf die strenge, lineare Ausrichtung des Büroriegels hingegen lässt einen klar formulierten Stadtraum von hoher Qualität entstehen.

Projekte