Böll Architekten - Logo

Menüsvg icon hamburger

Kulturzentrum Bottrop
Erweiterung des Kulturzentrum-August-Everding, 2020

Auftraggeber: Stadt Bottrop
Standort: Blumenstraße 12, 46236 Bottrop
Aussenanlagen: Planergruppe Oberhausen GmbH
Mehrfachbeauftragung 2015, 1. Preis

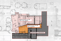
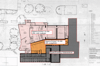
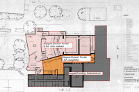
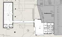
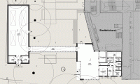
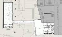
Anlass der Erweiterung war zum einen der Wunsch nach einer Aufwertung des rückwärtigen Eingangs in das Kulturzentrum, zum anderen die Neuausrichtung des städtischen Kunstforums. Durch unseren Entwurf entstand ein in sich abgeschlossenes bauliches Ensemble, das aus der vormaligen Rückseite des gründerzeitlichen Schulbaus einen einladenden Ort für die Menschen der Stadt macht. Im Kontrast zu der großen Baumasse des Kulturzentrums lösten wir das Raumprogramm in zwei leichte Baukörper, verbunden durch einen Galeriegang, auf, die das Kulturzentrum baulich in den grünen Außenraum erweitern und einen Vorplatz als einladende Geste bilden.

Modell zum Wettbewerb

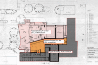
Freiraumkonzept zum Wettbewerb

Die Umnutzung des gründerzeitlichen Schulgebäudes zum städtischen Kulturzentrum war ein Projekt des Bottroper Stadtarchitekten Bernhard Küppers, von dem auch das Josef-Albers-Museum in Bottrop stammt. Seine ursprüngliche Planung wurde mit dem rückwärtigen Anbau für die Stadtbibliothek jedoch nur zum Teil umgesetzt. Der abschließend geplante Bau eines großen Saalbaus erfolgte nicht mehr. Nachdem das deutlich größere Bauvolumen des Saalbaus nicht mehr zur Verfügung stand, haben wir mit unserem Projekt den Ansatz verfolgt, mit der gezielten Setzung einzelner Pavillionbauten dem aus dem Gleichgewicht geratenen Stadtraum eine neue Qualität und dem Küpperschen Projekt einen Abschluss zu geben.

Hof des Kulturzentrums vor Errichtung der Erweiterung

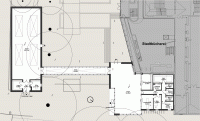
Lageplan der ursprünglichen Planung von Bernhard Küppers

Fotos: Thomas Mayer, Neuss

Projekte