Böll Architekten - Logo

Menüsvg icon hamburger

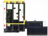
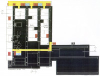
Elektrostahlwerk Oberhausen
Umbau für Austellungen

Studie, 1999

Die gigantischen Volumen des stillgelegten Elektrostahlwerkes in unmittelbarer Nachbarschaft der Neuen Mitte Oberhausen sollten wie ein Dinosaurier von der industriellen Vergangenheit des Ortes zeugen. Die Idee einer Nutzung zu Austellungszwecken wurde von uns im Rahmen einer Studie untersucht. Um die Spuren der brachialen Gewalt der Schrottschmelze nicht zu verwischen schlugen wir vor, lediglich variable Raumvolumen auf die für enorme Lasten ausgelegten Kranbahnen aufzulegen.

Modellfotos: Stephan Pegels

Projekte