Böll Architekten - Logo

Menüsvg icon hamburger

Markuskirche
Umbau zu Wohnungen, Gelsenkirchen, Wettbewerb 2012

Ausloberin: Ev. Trinitatis-Kirchengemeinde, Gelsenkirchen-Buer
Gutachterverfahren 2013

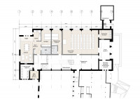
Zwei Rahmenbedingungen waren prägend für den konzeptionellen Ansatz. Zum Einen wurde das bauliche Ensemble bestehend aus Kirche, Gemeindehaus und Kindergarten bereits einmal baulich erweitert. Diese durchaus qualitätsvollen Erweiterungsbauten setzen sich bereits erkennbar vom Altbestand ab. Wir entschieden uns daher bewusst gegen weitere, wieder andersartige Anbauten, und pflegten damit eine auch von der Denkmalpflege gewünschte Zurückhaltung.
Die andere Rahmenbedingung sehen wir in der sehr ambitionierten Vorgabe, in einem vom Süden kaum belichtbaren Kirchenraum unter Beachtung des Denkmalschutzes und eines knappen Budgets sieben bis zehn Wohnungen einzubauen.
Unser Entwurf respektiert daher vollständig die gegebene Kubatur. Zusätzliche, als neu erkennbare Öffnungen in den Fassaden schaffen die für Wohnungen erforderliche Belichtung. Die Kirche wirkt durch diese Eingriffe nicht vom übrigen Bestand isoliert, das Spiel mit zusätzlichen Fensteröffnungen und teilweise sich über die Gebäudeecke öffnenden Loggien belebt und stärkt stattdessen die Ensemblewirkung der Gebäudegruppe.
Der sakrale Charakter im Inneren des Kirchenraumes hingegen wird lediglich zitiert. Ein großzügiger Treppenraum, an den für eine Wohnung ungeeigneten Südfassade gelegen, wird durch ein Dachoberlicht und das translozierte Markusfenster inszeniert. In diesem Raum wird die frühere Nutzung spürbar, gleichzeitig wird er sich als Ort der zufälligen Begegnung der Bewohner bewähren.

Projekte